In voorbereiding: Walajabad. Nieuw toiletgebouw met 20 toiletten

Walajabad. St. Joseph’s Matric Hr. Sec. School

Bij de St. Joseph’s Matric Hr. Sec. School staan in het schooljaar 2025–2026 1845 leerlingen ingeschreven: 987 jongens en 858 meisjes. Er is sprake van een groei van de leerlingen van tussen de 10 en 15% per jaar.
Er wordt lesgegeven van LKG (Lower Kinder Garten = kleuterklas) naar 1st tot en met 12th standard (basisschool en middelbare school). Dat is tot een leeftijd van 17 jaar. Er zijn 55 docenten en 21 niet-onderwijzende medewerkers.

De school bestaat uit drie schoolgebouwen met een totale oppervlakte van 9200 m², inclusief een speelplaats. Er zijn in totaal 44 klaslokalen.

De school heeft voor de meisjes slechts 8 toiletten, ze worden gebruikt door de oudere meisjes, de jongere meisjes gebruiken zo veel mogelijk de urinals. Voor de jongens zijn er 16 toiletten en een aantal urinals.

De grotere leerlingen hebben verspreid pauzes om de druk op de toiletten zo veel mogelijk te verminderen. Desondanks ontstaan er tijdens de pauzes lange rijen en dat is voor de leerlingen bijzonder onprettig en soms een reden om niet naar school te gaan.

De jongste meisjes en de jongens gebruiken de urinals (plasgoten), maar deze zijn niet overdekt. Dat betekent dat ze bij hevige regenval, wat door klimaatverandering steeds vaker voorkomt, nauwelijks bruikbaar zijn.

walajabad rijen meisjes 700.jpg
walajabad urinal meisjes overzicht.jpg
walajabad urinal meisjes ingang.jpg

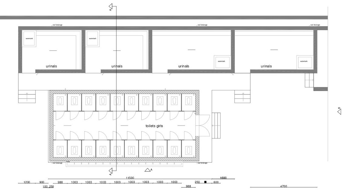
Het plan.

We gaan hier een nieuw toiletgebouw voor de meisjes bouwen. Daarna hebben de meisjes de beschikking over 20 nieuwe toiletten en natuurlijk nog over de 8 bestaande toiletten.

Het nieuwe toiletgebouw wordt vlak bij de urinals gezet.
De trapjes voor de ingangen van de verschillende urinals worden verwijderd en vervangen door een verhoogde gang op hetzelfde niveau. Dit niveau wordt ook de hoogte van het nieuwe toiletgebouw.

Voor de afscheiding van de verschillende toiletten gebruiken we ook hier weer de zgn. ‘cabins’ kunststofwandjes waar we zeer goede ervaringen mee hebben en die kant en klaar besteld worden.

De kosten zijn op dit moment nog niet bekend omdat de tekening in de laatste fase is en er nog geen offertes zijn. Onze projectleiders schatten dat de kosten van het gebouw zeker (fors?) boven de € 50.000 uit gaan komen.

walajabad plan tekening.jpg